9

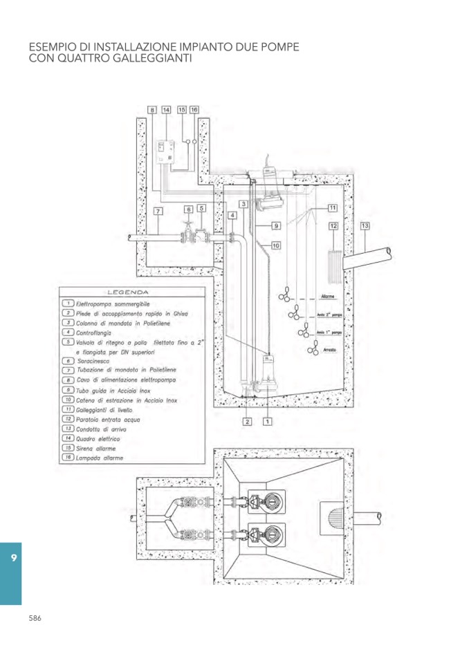
ESEMPIO DI INSTALLAZIONE IMPIANTO DUE POMPE

CON QUATTRO GALLEGGIANTI

586