Big PACi unità interna canalizzata ad alta prevalenza 20,0-25,0 kW.

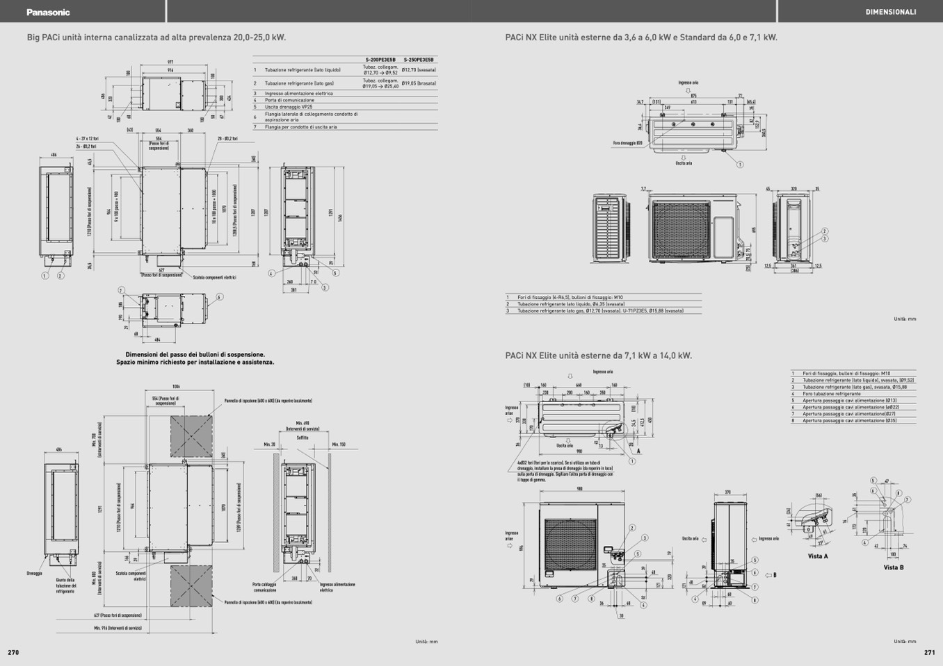
PACi NX Elite unità esterne da 3,6 a 6,0 kW e Standard da 6,0 e 7,1 kW.

486

1

2

627

(Passo fori di sospensione)

68

484

Scatola componenti elettrici

6

4

5

4 - 37 x 12 fori

26 - Ø3,2 fori

554

(Passo fori di

sospensione)

28 - Ø3,2 fori

7

260

70

381

3

(63)

554

360

977

916

1

2

3

4

5

6

7

Tubazione refrigerante (lato liquido)

Tubazione refrigerante (lato gas)

Ingresso alimentazione elettrica

Porta di comunicazione

Uscita drenaggio VP25

Flangia laterale di collegamento condotto di

aspirazione aria

Flangia per condotto di uscita aria

S-200PE3E5B

Tubaz. collegam.

Ø12,70 → Ø9,52

Tubaz. collegam.

Ø19,05 → Ø25,40

S-250PE3E5B

Ø12,70 (svasata)

Ø19,05 (brasata)

Dimensioni del passo dei bulloni di sospensione.

Spazio minimo richiesto per installazione e assistenza.

PACi NX Elite unità esterne da 7,1 kW a 14,0 kW.

1

2

3

Fori di fissaggio (4-R6,5), bulloni di fissaggio: M10

Tubazione refrigerante lato liquido, Ø6,35 (svasata)

Tubazione refrigerante lato gas, Ø12,70 (svasata). U-71PZ3E5, Ø15,88 (svasata)

34,7

Foro drenaggio Ø20

7,7

(131)

Ingresso aria

875

613

Uscita aria

131

72

1

(65,4)

349

45

12,5

320

361

(386)

35

12,5

2

3

DIMENSIONALI

Unità: mm

8

2

3

9

3

6

,

4

M

i

n

.

8

0

0

(

I

n

t

e

r

v

e

n

t

i

d

i

s

e

r

v

i

z

i

o

)

M

i

n

.

7

0

0

1

2

9

1

(

s

I

n

t

e

r

v

e

n

t

i

d

i

s

e

r

v

i

z

i

o

)

3

5

,

5

1

2

1

0

(

P

a

s

s

o

f

o

r

i

d

i

s

o

s

p

e

n

s

i

o

n

e

)

4

5

,

5

1

2

1

1

2

1

8

2

3

9

2

9

1

7

0

3

2

0

1

9

3

2

3

2

1

6

6

2

9

2

9

6

0

1

0

0

9

9

6

3

6

3

7

0

3

3

0

1

2

1

0

(

P

a

s

s

o

f

o

r

i

d

i

s

o

s

p

e

n

s

i

o

n

e

)

1

9

0

1

8

5

9

x

1

0

0

p

a

s

s

o

=

9

0

0

1

0

0

6

1

(

2

4

)

1

6

1

2

0

5

1

1

7

3

3

5

9

6

4

1

0

7

0

(

6

0

)

1

0

7

0

1

2

8

9

(

P

a

s

s

o

f

o

r

i

d

i

s

o

s

p

e

n

s

i

o

n

e

)

2

0

2

4

,

5

4

1

2

,

5

4

5

0

(

1

8

)

4

5

(

2

5

)

7

0

,

5

7

5

8

2

1

5

2

,

9

3

5

1

6

8

1

2

8

7

1

2

8

7

(

6

0

)

2

9

1

2

9

1

1

4

5

6

6

9

5

9

6

4

4

2

4

8

6

3

2

0

1

0

x

1

0

0

p

a

s

s

o

=

1

0

0

0

5

0

6

7

1

0

0

3

0

0

1

2

8

8

,

5

(

P

a

s

s

o

f

o

r

i

d

i

s

o

s

p

e

n

s

i

o

n

e

)

4

3

4

3

6

0

,

5

1

0

0

270

271

Drenaggio

Scatola componenti

elettrici

35

36

35

7

60

Vista B

486

Min. 20

Min. 150

A

Giunto della

tubazione del

refrigerante

260

70

48

627 (Passo fori di sospensione)

Min. 916 (Interventi di servizio)

30

1006

554 (Passo fori di

sospensione)

(10)

160

230

Ingresso

ariae

660

980

160

Pannello di ispezione (600 x 600) (da reperire localmente)

Porta cablaggio

comunicazione

Ingresso alimentazione

elettrica

Pannello di ispezione (600 x 600) (da reperire localmente)

6

7

8

60

4

89

60

8

Min. 690

(Interventi di servizio)

Soffitto

Unità: mm

Unità: mm

Ingresso

ariae

3

Uscita aria

Ingresso aria

B

(56)

49

200

Uscita aria

160

350

13

4xØ32 fori (fori per lo scarico). Se si utilizza un tubo di

drenaggio, installare la presa di drenaggio (da reperire in loco)

sulla porta di drenaggio. Sigillare l’altra porta di drenaggio con

il tappo di gomma.

1

2

4

5

47

6

4

980

370

8

7

74

Ingresso aria

1

2

3

4

5

6

7

8

Fori di fissaggio, bulloni di fissaggio: M10

Tubazione refrigerante (lato liquido), svasata, (Ø9,52)

Tubazione refrigerante (lato gas), svasata, Ø15,88

Foro tubazione refrigerante

Apertura passaggio cavi alimentazione (Ø13)

Apertura passaggio cavi alimentazione (øØ22)

Apertura passaggio cavi alimentazione(Ø27)

Apertura passaggio cavi alimentazione (Ø35)

5

Vista A

100

5

48

6

42