Sistemi Ibridi

SCHEDA PRODOTTO

ERP POMPA DI CALORE

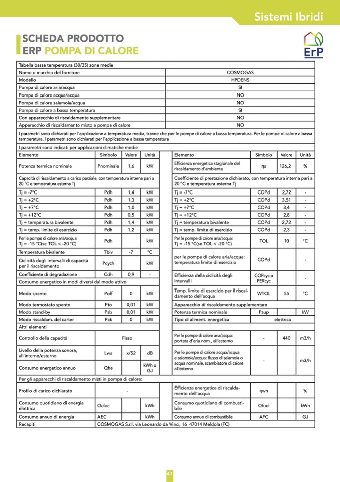
Tabella bassa temperatura (30/35) zone medie

Nome o marchio del fornitore

COSMOGAS

Modello

HPDENS

Pompa di calore aria/acqua

SI

Pompa di calore acqua/acqua NO

Pompa di calore salamoia/acqua

NO

Pompa di calore a bassa temperatura SI

Con apparecchio di riscaldamento supplementare

NO

Apparecchio di riscaldamento misto a pompa di calore

NO

I parametri sono dichiarati per l’applicazione a temperatura media, tranne che per le pompe di calore a bassa temperatura. Per le pompe di calore a bassa

temperatura, i parametri sono dichiarati per l’applicazione a bassa temperatura

I parametri sono indicati per applicazioni climatiche medie

Elemento

Simbolo

Valore Unità

Elemento

Simbolo

Valore Unità

Potenza termica nominale

Pnominale 1,6 kW

Efficienza energetica stagionale del

riscaldamento d’ambiente

ηs 126,2 %

Capacità di riscaldamento a carico parziale, con temperatura interna pari a

20 °C e temperatura esterna Tj

Coefficiente di prestazione dichiarato, con temperatura interna pari a

20 °C e temperatura esterna Tj

Tj = -7°C

Pdh

1,4 kW

Tj = -7°C

COPd

2,72 -

Tj = +2°C

Pdh

1,3 kW

Tj = +2°C

COPd

3,51 -

Tj = +7°C

Pdh

1,0 kW

Tj = +7°C

COPd

3,4 -

Tj = +12°C

Pdh 0,5 kW

Tj = +12°C

COPd 2,8 -

Tj = temperatura bivalente

Pdh

1,4 kW

Tj = temperatura bivalente

COPd

2,72 -

Tj = temp. limite di esercizio

Pdh

1,2 kW

Tj = temp. limite di esercizio

COPd

2,3 -

Per le pompe di calore aria/acqua:

Tj = -15 °C(se TOL < -20 °C)

Pdh kW

Per le pompe di calore aria/acqua:

Tj = -15 °C(se TOL < -20 °C)

TOL 10 °C

Temperatura bivalente

Tbiv

-7 °C

per le pompe di calore aria/acqua:

temperatura limite di esercizio

COPd -

Ciclicità degli intervalli di capacità

per il riscaldamento

Pcych kW

Coefficiente di degradazione

Cdh

0,9 -

Efficienza della ciclicità degli

intervalli

COPcyc o

PERcyc

-

Consumo energetico in modi diversi dal modo attivo

Modo spento

Poff

0 kW

Temp. limite di esercizio per il riscal-

damento dell’acqua

WTOL

55 °C

Modo termostato spento

Pto

0,01 kW Apparecchio di riscaldamento supplementare

Modo stand-by

Psb

0,01 kW

Potenza termica nominale

Psup kW

Modo riscaldam. del carter

Pck 0 kW

Tipo di aliment. energetica elettrica

Altri elementi

Controllo della capacità

Fisso

Per le pompe di calore aria/acqua:

portata d’aria nom., all’esterno

-

440 m3/h

Livello della potenza sonora,

all’interno/esterno

Lwa

x/52 dB

Per le pompe di calore acqua/acqua

e salamoia/acqua: flusso di salamoia o

acqua nominale, scambiatore di calore

all’esterno

- m3/h

Consumo energetico annuo

Qhe

kWh o

GJ

Per gli apparecchi di riscaldamento misti in pompa di calore:

Profilo di carico dichiarato

-

Efficienza energetica di riscalda-

mento dell’acqua

ηwh %

Consumo quotidiano di energia

elettrica

Qelec kWh

Consumo quotidiano di combusti-

bile

Qfuel kWh

Consumo annuo di energia

AEC kWh

Consumo annuo di combustibile

AFC GJ

Recapiti COSMOGAS S.r.l. via Leonardo da Vinci, 16 47014 Meldola (FC)

47