2

63

MI

A

RI

601

A

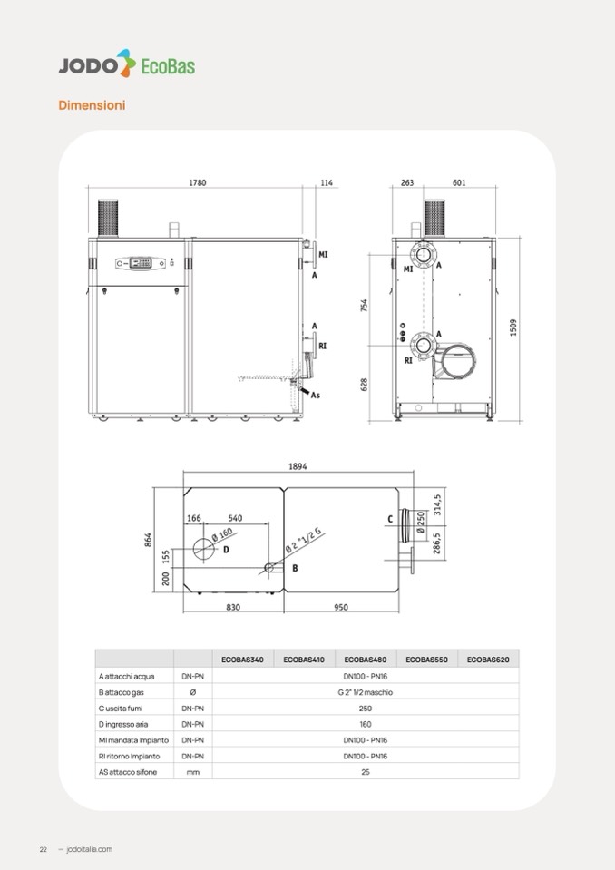
Dimensioni

22

— jodoitalia.com

EcoBas

1780

114

MI

A

A

RI

As

1894

263

601

9

0

5

5

,

4

1

0

1

3

166

540

C

5

2

Ø

4

5

1 6

0

G

6

Ø

/ 2

,

8

2 " 1

6

D

Ø

8

5

1

2

B

0

2

A attacchi acqua

DN-PN

B attacco gas

Ø

C uscita fumi

DN-PN

D ingresso aria

DN-PN

MI mandata Impianto

DN-PN

RI ritorno Impianto

DN-PN

AS attacco sifone

mm

830

ECOBAS340

ECOBAS410

950

ECOBAS480

DN100 - PN16

G 2” 1/2 maschio

250

160

DN100 - PN16

DN100 - PN16

25

ECOBAS550

ECOBAS620

A

4

5

7

A

9

0

5

1

166

RI

4

6

8

8

2

6

5

1

0

2

MI