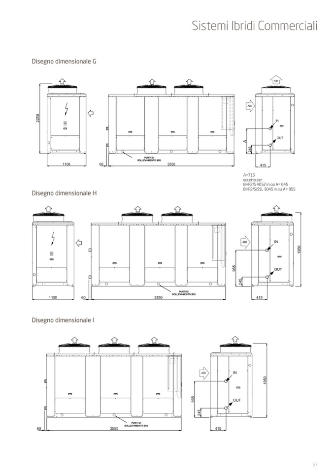
Disegno dimensionale G

A

Disegno dimensionale H

A=715

eccetto per:

BHP2/S 4052 in cui A= 645

BHP2/S/SSL 3045 in cui A= 955

Disegno dimensionale I

PUNTI DI

SOLLEVAMENTO Ø63

PUNTI DI

SOLLEVAMENTO Ø63

PUNTI DI

SOLLEVAMENTO Ø63

Sistemi Ibridi Commerciali

57