FAI CLIC QUI PER CONSULTARE

TUTTI GLI SCHEMI TECNICI DEL

MODELLO FXDA-A SU MY.DAIKIN.EU

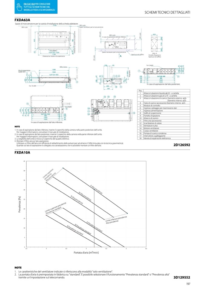
FXDA63A

Spazio di manutenzione per la scatola d'installazione della scheda adattatore.

1150

·300· o più

SCHEMI TECNICI DETTAGLIATI

·300· o pi

Spazio necessario per la manutenzione

h

c

t

i

p

e

n

i

o

s

o

p

l

i

i

t

o

p

u

̀

b

n

·

e

0

o

·400· o più

620

n

p

2

·

s

s

2

·

0

o

s

·

0

i

o

4

0

In caso di aspirazione dal lato inferiore.

0

0

n

e

i

d

3

6

5

s

n

2

0

p

i

u

o

S

l

u

b

0

5

1

i

a

r

t

1

Fori 26xø4.7

8

10xP100= 1000

1140

Distanza tra i bulloni di sospensione

a

z

n

a

0

8

t

3

0

D

s

i

Spazio necessario per la manutenzione

6

Vista ·A·

p

i

Apertura nel so

ffitto

A

Portello d'ispezione

Apertura nel soffitto

o

·

0

2

·

130

63

Fori 24xM5

300·o meno

0

5

0

2

0

1

Vite di sospensione

1080

4xM8~M10

1060

0

1

1

)

i

0

6

8

e

l

0

0

0

b

1

7

5

.

2

5

.

7

0

6

~

a

l

o

1

1

2

5

7

0

0

g

e

6xP150= 900

4

9

2

1

3

9

(

R

150

9xP100= 900

11

0

0

0

7

3

5

0

0

0

100

980

2

1

1

8

0

1

0

5

7

1

90

1000

4

80

1020

30

3

2

In caso di aspirazione dal lato posteriore.

Fori 18 xM4

33

50

280

10

5

330

Pos.

1

Attacco tubazione liquido ø6,35 - a cartella

1

3

14

15

2

Attacco tubazione gas ø12,70 - a cartella

3

Attacco tubazione di scarico Diametro esterno: ·ø26·

Diametro interno: ·ø20·

11

4

Tubo di scarico (accessorio) Diametro interno: ·ø25·

Fori 24xM5

5

Modulo di controllo

6

16

6

Ingresso cablaggio per trasmissione dati

0

2

0

8

1

0

6

1

0

1

17

7

Ingresso alimentazione

9xP100= 900

130

18

12

8

Sta

ffa di sospensione

0

1

0

2

0

5

980

100

9

Portello d'ispezione

1000

90

1020

80

10

Attacco di scarico

11

Filtro aria (accessorio)

In caso di aspirazione dal lato inferiore.

12

Scambiatore di calore

NOTE

13

Ventilatore turbo

14

Motore ventilatore

1. In caso di aspirazione dal lato inferiore, inserire il coperchio della camera nella parte posteriore dell’unit

à.

Per maggiori informazioni, consultare il manuale di installazione.

15

Corpo ventilatore

2. In caso di aspirazione dal lato posteriore, inserire il coperchio della camera nella parte inferiore dell’unit

à.

16

Pompa di scarico condensa

Per maggiori informazioni, consultare il manuale di installazione.

17

Interruttore a galleggiante

3. La targhetta dell’unità si trova sul coperchio del quadro elettrico.

18

Valvola di espansione elettronica

4. Montare il

filtro aria sul lato aspirazione.

Utilizzare un filtro dell’aria con e

fficienza di abbattimento delle polveri pari ad almeno il 50% (misurata con la tecnica gravimetrica).

Quando sul lato di aspirazione

è collegata una canalizzazione, non

è possibile montare un filtro dell'aria.

2D126592

FXDA10A

45

40

35

30

]

a

P

[

25

15

10

5

p

e

r

i

o

r

e

s

ua

z

a

i

m

i

t

e

a

l

e

n

z

v

a

l

e

n

L

p

r

e

v

t

a

p

r

e

A

l

a

z

n

e

l

a

v

e

r

e

p

r

e

v

a

l

en

z

a

20

p

e

r

i

o

d

a

rd

i

t

e

su

s

t

an

r

P

L

i

m

l

en

z

a

P

r

e

v

a

A

A

l

t

a

p

r

e

v

a

l

e

n

M

z

a

A

l

t

a

p

B

A

l

t

a

r

e

v

a

l

e

n

p

r

e

v

a

l

e

z

a

n

z

a

M

A

P

r

e

v

B

P

P

a

l

e

r

n

e

r

e

v

a

a

e

l

z

v

e

a

l

n

s

n

a

z

n

a

z

t

a

d

s

t

s

a

a

r

d

n

t

a

d

n

a

d

r

d

a

r

d

L

im

it

e

in

fe

r

e

i

o

n

r

z

e

a

pr

ev

a

le

nz

a

A

lt

a

p

re

va

l

0

3.5

4

4.5

5

5.5

6

6.5

Portata d'aria [m3/min]

NOTE

1. Le caratteristiche del ventilatore indicate si riferiscono alla modalità "solo ventilazione".

2. La portata d'aria è preimpostata in fabbrica su "standard". È possibile selezionare il funzionamento "Prevalenza standard" o "Prevalenza alta"

tramite un'impostazione sul telecomando.

3D129552

197