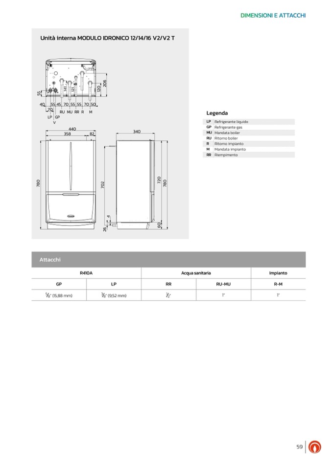
Unità interna MODULO IDRONICO 12/14/16 V2/V2 T

1

1

0

6

0

2

0

4

1

2

2

2

1

1

0

1

5

4

1

2

1

2

1

40

55 45 70 55 55 70 50

40

55 45 70 55 55 70 50

70

70 RUMURRR M

LP GP

RUMURRR M

LP GP

V

V

440

440

358

82

358

82

Legenda

LP

Refrigerante liquido

GP

Refrigerante gas

MU

Mandata boiler

RU

Ritorno boiler

R

Ritorno impianto

M

Mandata impianto

RR

Riempimento

0

0

0

2

0

8

0

2

2

7

8

0

7

8

7

2

0

7

0

7

7

7

8

7

Attacchi

R410A

GP

5

8” (15,88 mm)

4

4

0

6

0

6

6

2

6

2

3

8” (9,52 mm)

Acqua sanitaria

Impianto

R-M

1”

6

LP

RR

1

2”

RU-MU

1”

340

340

DIMENSIONI E ATTACCHI

59