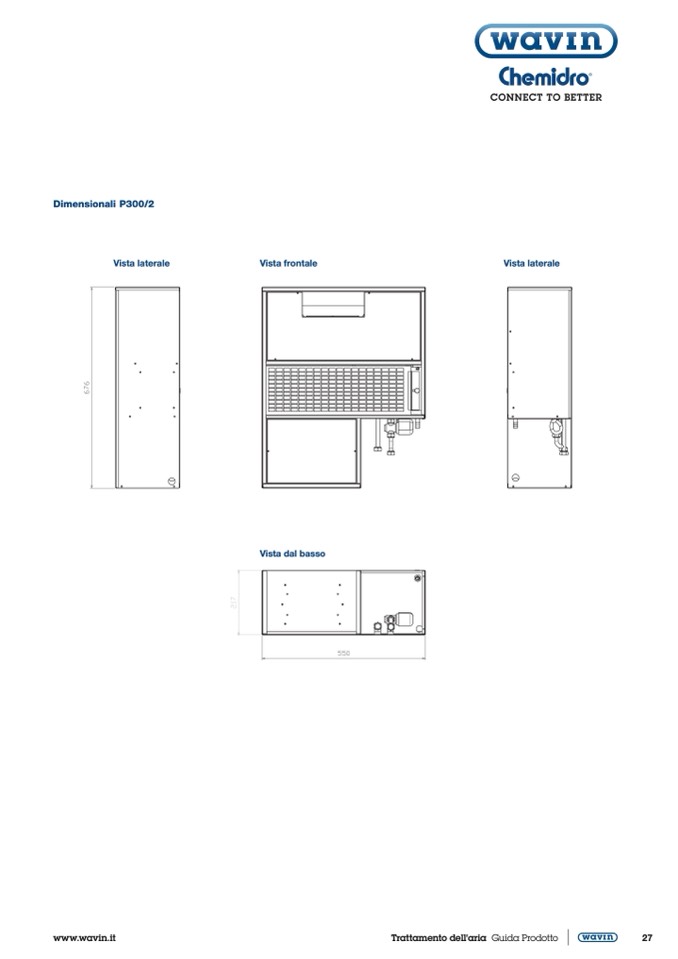
Dimensionali P300/2

Vista laterale

Vista frontale

Vista laterale

Vista dal basso

www.wavin.it

Trattamento dell'aria Guida Prodotto

27