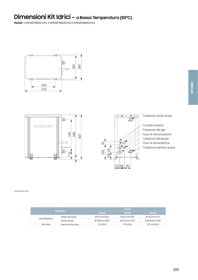
Dimensioni Kit Idrici -

a Bassa Temperatura (50°C)

Modelli AM160FNBDEH/EU AM320FNBDEH/EU AM500FNBDEH/EU

Unità di misura [mm]

Lato refrigerante

Lato acqua

Attacco del liquido

Attacco del gas

Ingresso/uscita acqua

Ø 9.52 mm (3/8")

Ø 15.88 mm (5/8")

PT 1 (25 A)

Ø 9.52 mm (3/8")

Ø 22.23 mm (7/8")

PT 1 (25 A)

Ø 12.70 mm (1/2")

Ø 28.58 mm (1 1/8")

PT 1-1/4 (32 A)

209

K

I

T

I

D

R

I

C

I

Descrizione

Modelli

14.0 kW

28.0 kW

44.8 kW