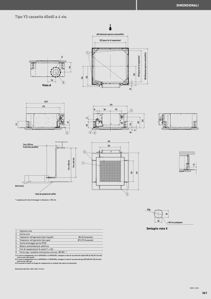
Tipo Y3 cassetta 60x60 a 4 vie.

Unità interna

Fino a 300 mm

(il più breve possibile)

6

4

3

2

1

136

Vista A

(647)

575

X

8

Fondo del pannello del soffitto

2

* Lunghezza del tubo di drenaggio in dotazione = 250 mm.

1 Ingresso aria

2 Uscita aria

3 Tubazione refrigerante (lato liquido)

4 Tubazione refrigerante (lato gas)

5 Uscita drenaggio porta VP20

6 Attacco alimentazione elettrica

7 Fori di sospensione (4 asole11 x 26)

8 Porta ingr. condotto immissione aria est. (Ø100)

3)

4-Ø3 Foro predisposto

Dettaglio vista X

1) In caso di collegamento con U-60PZ3E5A o U-60PZH3E5, collegare il tubo di raccordo del liquido (Ø9,52-Ø6,35) all’unità

interna lato tubo liquido.

2) In caso di collegamento con U-60PZ3E5A o U-60PZH3E5, collegare il tubo di raccordo del gas (Ø15,88-Ø12,70) all’unità

interna lato tubo gas.

3) È necessario fissare la flangia di collegamento al condotto (da reperire localmente).

Dimensioni del filtro: 362 x 362 x 15 mm.

Ø6,35 (svasata)

Ø12,70 (svasata)

7

34

186

575

625

193

5

A

600 (dimensioni apertura controsoffitto)

DIMENSIONALI

Unit: mm

361

530 (passo fori di sospensione)

5

3

0

(

p

a

s

s

o

f

o

r

i

d

i

s

o

s

p

e

n

s

i

o

n

e

)

6

0

0

(

d

i

m

e

n

s

i

o

n

i

a

p

e

r

t

u

r

a

c

o

n

t

r

o

s

o

f

f

i

t

t

o

)

3

2

3

3

2

8

1

1

0

1

8

3

353

F

i

n

o

a

6

6

6

m

m

3

5

3

80

Ø100

8

0

6

2

5

1

2

F

i

n

o

a

8

5

0

m

m

4

8

1

0

2

4

1

1

6

6

>

4

5

3

0

4

0

1

1

2

2

4

3

3

4

5