DIMENSIONALI

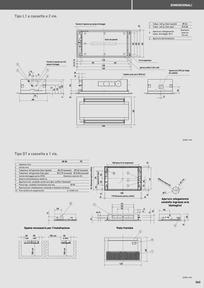
Tipo L1 a cassetta a 2 vie.

5

3

0

6

0

0

6

4

0

6

8

0

3

2

110

30

102

680

Pannello di ispezione per ECV,

pompa di drenaggio

40

70

20

Fori di sospensione

Apertura soffitto (1320 x 640)

Tipo D1 a cassetta a 1 via.

70

80

Condotto uscita aria (2-Ø150 fori)

1 Ingresso aria

2 Uscita aria

3 Tubazione refrigerante (lato liquido)

4 Tubazione refrigerante (lato gas)

5 Uscita drenaggio porta VP25

6 Attacco alimentazione elettrica

7 Apertura coll. condotto uscita aria (per soffitto ribassato)

8 Porta ingr. condotto immissione aria est.

Ø100

9 Apertura per installazione comando a distanza wireless

1

3

5

4

7

5

(

p

a

s

s

o

f

o

r

i

d

i

s

o

s

p

.

)

2

2

0

2

5

5

10

5

2

1

6

8

0

7

1

0

4

3

Ø100 (foro knock-out)

4

Ø

3

,

1

f

o

r

o

10 Foro bulloni di sospensione

Ø113

706

363

Spazio necessario per l’installazione

6

200

o più

200

o più

1000 o più

200

or more

1

4

70

Ingresso aria ( Ø125 per flangia

del condotto)

230

28-56

Ø6,35 (svasata)

Ø12,70 (svasata)

Pannello di ispezione per pompa di drenaggio

1 Tubaz. refrig. (lato liquido)

2 Tubaz. refrig. (lato gas)

Apertura collegamento

3

tupaz. drenaggio 25 A

4 Apertura alimentazione

Ø9,52

Ø15,88

Diametro

esterno

32 mm

73

Ø9,52 (svasata)

Ø15,88 (svasata)

4-12x30 mm

1060 (passo fori di sospensione)

1000

Vista frontale

Diametro esterno 32

1140

590

20

8

7

726

20

61

41

2

9

1

Aperura colegamento

condotto ingresso aria

(dettaglio)

356

1320

1360

Centro del pannello

630

1360

3

5

0

7

5

1

9

5

2

2

0

3

1

0

1190 (dimensioni apertura soffitto)

23

Unità: mm

1

0

0

0

o

p

i

u

̀

1

0

0

0

o

p

i

u

̀

1

1

2

8

0

0

2

0

2

0

2

0

2

0

0

9

2

7

6

0

(

d

i

m

e

n

s

i

o

n

i

a

p

e

r

t

u

r

a

s

o

f

f

i

t

t

o

)

9

5

7

6

2

5

9

4

1

5

4

6

8

0

8

6

0

2

9

0

1

6

5

2

0

1230

Unità: mm

363