8

7

R

i

u

t

i

l

i

z

z

o

6

P

i

c

c

o

l

i

i

m

p

i

a

n

t

i

L

i

s

t

i

n

o

p

r

e

z

z

i

d

e

l

l

'

a

c

q

u

a

d

i

d

e

p

u

r

a

z

i

o

n

e

5

S

e

p

a

r

a

t

o

r

i

4

S

c

a

r

i

c

h

i

3

S

t

a

z

i

o

n

i

d

i

s

o

l

l

e

v

a

m

e

n

t

o

2

S

t

a

z

i

o

n

i

1

D

i

s

p

o

s

i

t

i

v

i

d

i

d

i

s

o

l

l

e

v

a

m

e

n

t

o

c

h

i

u

s

u

r

a

I

n

f

o

r

m

a

z

i

o

n

i

i

b

r

i

d

e

a

n

t

i

-

r

i

s

t

a

g

n

o

p

i

o

v

a

n

a

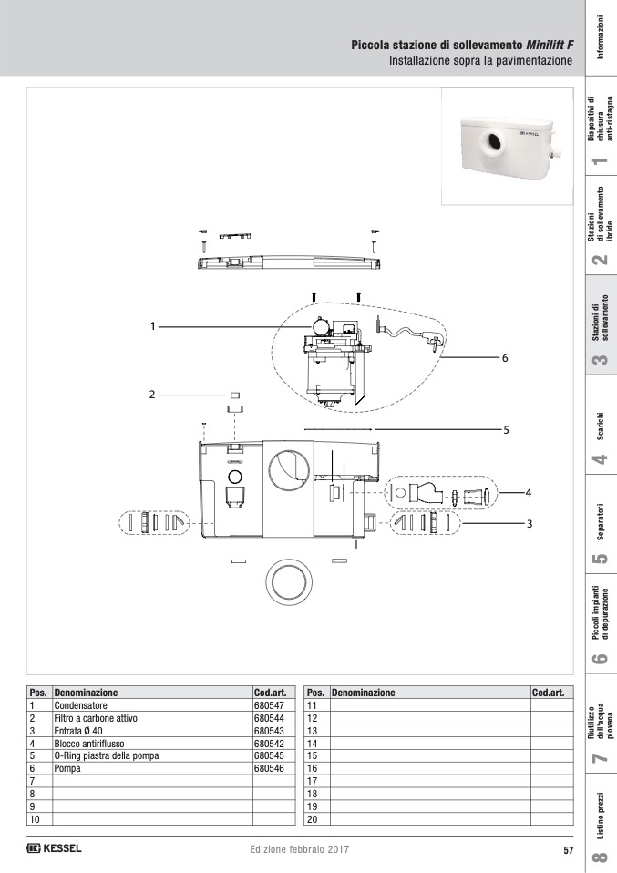
Pos. Denominazione

1

Condensatore

Cod.art.

680547

680544

680543

680542

680545

680546

Pos. Denominazione

11

12

13

14

15

16

17

18

19

20

Cod.art.

2

Filtro a

3

Entrata

4

Blocco

5

O-Ring

6

Pompa

7

8

9

10

carbone attivo

Ø 40

antiriflusso

piastra della pompa

1

2

6

5

4

3

Edizione febbraio 2017

57

Piccola stazione di sollevamento Minilift F

Installazione sopra la pavimentazione