Schede ErP

SCHEDA PRODOTTO ERP

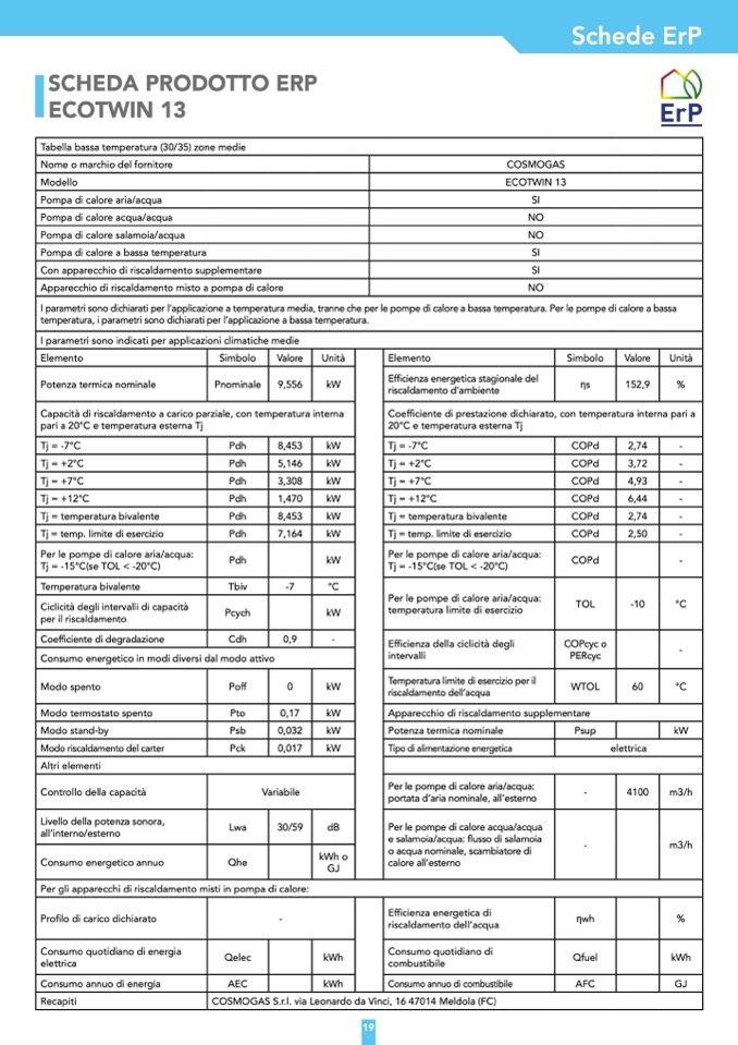
ECOTWIN 13

Tabella bassa temperatura (30/35) zone medie

Nome o marchio del fornitore

COSMOGAS

Modello

ECOTWIN 13

Pompa di calore aria/acqua SI

Pompa di calore acqua/acqua

NO

Pompa di calore salamoia/acqua

NO

Pompa di calore a bassa temperatura SI

Con apparecchio di riscaldamento supplementare

SI

Apparecchio di riscaldamento misto a pompa di calore NO

I parametri sono dichiarati per l’applicazione a temperatura media, tranne che per le pompe di calore a bassa temperatura. Per le pompe di calore a bassa

temperatura, i parametri sono dichiarati per l’applicazione a bassa temperatura.

I parametri sono indicati per applicazioni climatiche medie

Elemento

Simbolo

Valore Unità

Elemento

Simbolo

Valore Unità

Potenza termica nominale

Pnominale 9,556 kW

Efficienza energetica stagionale del

riscaldamento d’ambiente

ηs 152,9 %

Capacità di riscaldamento a carico parziale, con temperatura interna

pari a 20°C e temperatura esterna Tj

Coefficiente di prestazione dichiarato, con temperatura interna pari a

20°C e temperatura esterna Tj

Tj = -7°C

Pdh

8,453 kW

Tj = -7°C

COPd

2,74 -

Tj = +2°C

Pdh

5,146 kW

Tj = +2°C

COPd

3,72 -

Tj = +7°C

Pdh

3,308 kW

Tj = +7°C

COPd

4,93 -

Tj = +12°C

Pdh 1,470 kW

Tj = +12°C

COPd 6,44 -

Tj = temperatura bivalente

Pdh

8,453 kW

Tj = temperatura bivalente

COPd

2,74 -

Tj = temp. limite di esercizio

Pdh

7,164 kW

Tj = temp. limite di esercizio

COPd

2,50 -

Per le pompe di calore aria/acqua:

Tj = -15°C(se TOL < -20°C)

Pdh kW

Per le pompe di calore aria/acqua:

Tj = -15°C(se TOL < -20°C)

COPd -

Temperatura bivalente

Tbiv

-7 °C

Per le pompe di calore aria/acqua:

temperatura limite di esercizio

TOL -10 °C

Ciclicità degli intervalli di capacità

per il riscaldamento

Pcych kW

Coefficiente di degradazione

Cdh

0,9 -

Efficienza della ciclicità degli

intervalli

COPcyc o

PERcyc

-

Consumo energetico in modi diversi dal modo attivo

Modo spento

Poff

0 kW

Temperatura limite di esercizio per il

riscaldamento dell’acqua

WTOL

60 °C

Modo termostato spento

Pto

0,17 kW Apparecchio di riscaldamento supplementare

Modo stand-by

Psb

0,032 kW

Potenza termica nominale

Psup kW

Modo riscaldamento del carter

Pck

0,017 kW

Tipo di alimentazione energetica elettrica

Altri elementi

Controllo della capacità

Variabile

Per le pompe di calore aria/acqua:

portata d’aria nominale, all’esterno

-

4100 m3/h

Livello della potenza sonora,

all’interno/esterno

Lwa

30/59 dB

Per le pompe di calore acqua/acqua

e salamoia/acqua: flusso di salamoia

o acqua nominale, scambiatore di

calore all’esterno

- m3/h

Consumo energetico annuo

Qhe

kWh o

GJ

Per gli apparecchi di riscaldamento misti in pompa di calore:

Profilo di carico dichiarato

-

Efficienza energetica di

riscaldamento dell’acqua

ηwh %

Consumo quotidiano di energia

elettrica

Qelec kWh

Consumo quotidiano di

combustibile

Qfuel kWh

Consumo annuo di energia

AEC kWh

Consumo annuo di combustibile

AFC GJ

Recapiti COSMOGAS S.r.l. via Leonardo da Vinci, 16 47014 Meldola (FC)

19