UNITÀ ESTERNA

RAV-GM2241AT8-E1

DIGITAL INVERTER - BIG DIGITAL

28

105

10

2

443

9

0

6

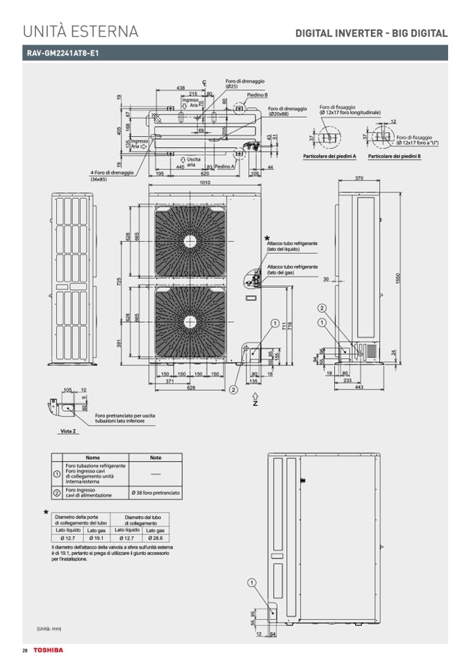
Vista Z

Foro tubazione refrigerante

Foro ingresso cavi

di collegamento unità

interna/esterna

Foro ingresso

cavi di alimentazione

*

Diametro della porta

di collegamento del tubo

Lato liquido Lato gas

Ø 12.7

Ø 19.1

Nome

Note

Ø 38 foro pretranciato

Diametro del tubo

di collegamento

Lato liquido Lato gas

Ø 12.7

Ø 28.6

Note

CL

ForFodroi dirednreangaggiogio

438

(Ø25)

(Ø25)

215

80

9

1

Piedino B

Ingresso

Ingresso

0

6

0

Piedino B

Aria

Aria

7

Foro di drenaggio

7

6

Foro di drenaggio

(Ø20x88)

(Ø 12x17 foro longitudinale)

(Ø20x88)

12

5

8

6

1

5

0

4

0

2

69

5

3

Ingresso

3

4

1

5

7

3

7

3

(Ø 12x17 foro a “U”)

IngressAria

1

o

Aria

Uscita

Particolare dei piedini A

Foro pretranciato per uscita

Particolare dei piedini B

9

1

tubazioni lato inferiore

4U45scita

aria

83 PiedinoA

44

4-Foro di drenaggio

195

aria

620 P

iedino A

109

(36x85)

Vista Z

370

4-Foro di drenaggio

1010

(36x85)

8

2

6

5

6

5

2

7

*

Attacco tubo refrigerante

(lato del liquido)

Attacco tubo refrigerante

(lato del gas)

30

2

Attacco tubo refrigerante

8

2

6

5

6

(Ø 15,9 attacco a cartella

1

per l1a linea del gas)

1

7

6

1

7

0

5

1

1

9

3

5

9

5

5

9

4

2

5

5

1

4

9

5

5

5

Foro pretranciato per uscita

tubazioni lato inferiore

Il diametro dell'attacco della valvola a sfera sull'unità esterna

è di 19.1, pertanto si prega di utilizzare il giunto accessorio

per l'installazione.

(Unità: mm)

1

5

9

5

12

64

Foro tubazione refrigerante

Foro ingresso cavi

di collegamento unità

interna/esterna

Foro ingresso

cavi di alimentazione

(Ø 12x17 foro longitudinale)

Particolare dei piedini A

Ø 38 foro pretranciato

(Ø 12x17 foro a “U”)

Particolare dei piedini B

150

150

150

150

371

628

80

18

135

18

Nome

80

233

Attacco tubo refrigerante

(Ø 9,5 attacco a cartella

per la linea del liquido)