RAV-GV1601ATP-E

(Unità: mm)

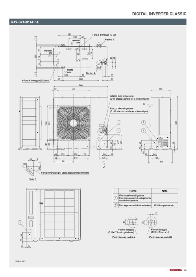
Ingresso

aria

Ingresso

Aria

4-Foro di drenaggio

(36x85)

Foro di drenaggio

(Ø20x88)

5-Foro di drenaggio (Ø 20x88)

Foro pretranciato per uscita tubazioni lato inferiore

Vista Z

Ingresso

Ingres

a

so

ria

Aria

Uscita Uscita

aria aria

Piedino B

Piedino A

Piedino A

Vista Z

Foro di drenaggio

Foro di drenaggio (Ø 25)

(Ø25)

Piedino B

Attacco tubo refrigerante

(Ø 9,5 attacco a cartella per la linea del liquido)

Attacco tubo refrigerante

(Ø 15,9 attacco a cartella per la linea del gas)

Attacco tubo refrigerante

(Ø 9,5 attacco a cartella

per la linea del liquido)

Attacco tubo refrigerante

(Ø 15,9 attacco a cartella

per la linea del gas)

unità interna/esterna

DIGITAL INVERTER CLASSIC

No

N

m

o

e

me

N

N

o

o

te

te

Ø 38 foro pretranciato

Foro tubazione refrigerante

Foro tubazione refrigerante

Foro ingresso cavi

Foro ingresso cavi di collegamento

di collegamento unità

interna/esterna

Foro iFnogroesinsogrceasvsiodi alimentazione

cavi di alimentazione

Ø 38 foro pretranciato

(Ø 12x17 foro longitudinale)

Foro di fissaggio

(Ø 12x17 foro longitudinale)

Particolare dei piedini A

Particolare dei piedini A

Foro di fissaggio

(Ø 12x17 foro a U)

Particolare dei piedini B

Foro pretranciato per uscita

tubazioni lato inferiore

(Ø 12x17 foro a “U”)

Particolare dei piedini B

35