CANALIZZABILE ALTA PREVALENZA

RAV-RM2241DTP-E/RAV-RM2241DTP-E2, RAV-RM2801DTP-E/RAV-RM2801DTP-E2

74

Asole per tiranti di sospensione

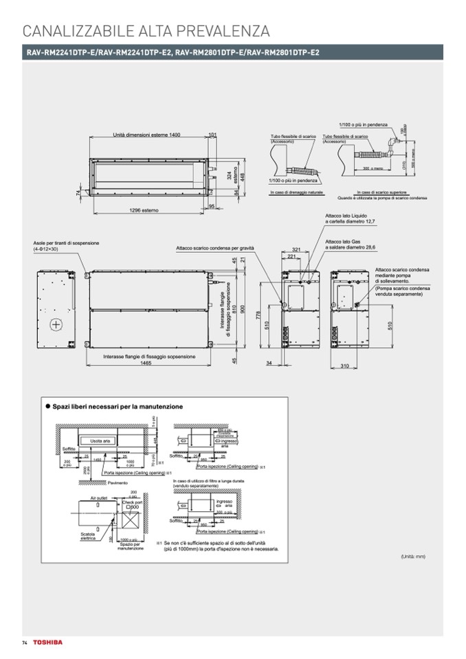
Attacco scarico condensa per gravità

321

221

5

4

1

2

Attacco lato Gas

a saldare diametro 28,6

Unità dimensioni esterne 1400

101

1/100 o più in pendenza

Tubo flessibile di scarico

Tubo flessibile di scarico

(Accessorio)

(Accessorio)

0

o

n

e

9

1

m

o

o

n

e

m

)

0

o

0

300 o meno

1

3

(

0

5

4

o

n

r

8

2

3

e

t

s

e

4

1/100 o più in pendenza

4

7

4

8

In caso di drenaggio naturale

In caso di scarico superiore

Quando è utilizzata la pompa di scarico condensa

95

1296 esterno

4

7

4

8

Attacco lato Liquido

a cartella diametro 12,7

95

1296 esterno

Interasse flangie di fissaggio sopsensione

1465

Spazi liberi necessari per la manutenzione

i

d

5

4

34

310

Soffitto

o più

200

Uscita aria

4

8

ingresso

aria

25

p

u

̀

i

Soffitto

25

25

1450

25

1000

0

o

1

950

o più

0

5

u

̀

i

p

7

Porta ispezione (Ceiling opening) 1

2

o

Porta ispezione (Ceiling opening)

1

Air outlet

Scatola

elettrica

200

o più

Check port

600

Pavimento

In caso di utilizzo di filtro a lunga durata

(venduto separatamente)

ingresso

aria

300 o più

Soffitto

25

25

950

Porta ispezione (Ceiling opening) 1

1

0

1000 o più

Spazio per

manutenzione

1 Se non c'è sufficiente spazio al di sotto dell'unità

(più di 1000mm) la porta d'ispezione non è necessaria.

u

̀

i

p

o

5

850 o più

d'aspirazione

Condotto

di sollevamento.

e

n

(Pompa scarico condensa

e

i

o

i

s

venduta separamente)

g

n

n

e

p

a

l

f

e

s

o

s

0

1

0

s

a

r

o

i

g

8

9

8

7

e

t

g

a

0

0

n

I

s

i

f

1

5

1

5

Attacco scarico condensa

mediante pompa

(Unità: mm)