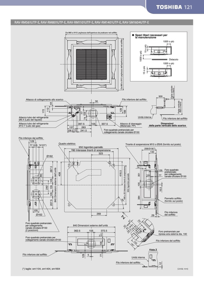
RAV-RM561UTP-E, RAV-RM801UTP-E, RAV-RM1101UTP-E, RAV-RM1401UTP-E, RAV-SM1604UTP-E

RAV-SM564UT-E

Attacco di collegamento allo scarico

30

Filo inferiore del soffitto

Unità interna

1000 o più

Ostacolo

1000 o più

300

Attacco tubo del refrigerante

Ø6.4 (Lato del liquido)

Attacco tubo del refrigerante

Ø12.7 (Lato del gas)

Filo inferiore del soffitto

129

77105 74/137(*)

Ø162

Filo inferiore del soffitto

105

Ø162

Foro quadrato pretranciato

per collegamento

canale circolare Ø150

(2 posizioni)

Foro quadrato pretranciato per

collegamento canale circolare Ø150

Filo inferiore del soffitto

(*) taglie: sm1104, sm1404, sm1604

269

840 Dimensioni esterne dell’unità

29

Da 860 a 910 Larghezza dell’apertura da praticare nel soffitto

Spazi liberi necessari per

la manutenzione

157

106.5 72

Quadro elettrico

397.5

105

263

241.5

337.5

Attacco di drenaggio

(Meteriale: PP)

Dimensioni

della parte verticale dello scarico

950 Ingombro pannello

780 Interasse tiranti di sospensione

323

Tirante di sospensione M10 o Ø3/8 (fornito sul posto)

362.5

105

372.5

Foro pretranciato per

ripresa aria esterna dia. 100

Filo inferiore del soffitto

5

Unità interna

Filo inferiore del soffitto

Foro quadrato pretranciato per

collegamento canale circolare Ø150

74

129

77

Foro quadrato

pretranciato

per collegamento

canale circolare Ø150

Pannello soffitto

(fornito sul posto)

Filo inferiore

del soffitto

256/319(*)

132

105

Vista Z

(Unità: mm)

121

4

5

̊

Z

3

2

5

7

6

1

2

8

.

5

64

155

187

1

2

1

6

.

5

1

2

9

7

7

7

4

1

0

5

7

7

1

0

5

7

4

/

1

3

7

(

*

)

2

4

0

2

0

7

.

5

1

0

5

1

3

5

1

0

5

4

4

2

8

7

.

5

8

4

0

D

i

m

e

n

s

i

o

n

i

e

s

t

e

r

n

e

d

e

l

l

u

n

i

t

a

̀

4

1

6

.

5

6

9

0

±

2

0

I

n

t

e

r

a

s

s

e

t

i

r

a

n

t

i

d

i

s

o

s

p

e

n

s

i

o

n

e

1

2

9

1

8

9

D

a

8

6

0

a

9

1

0

L

a

r

g

h

e

z

z

a

d

e

l

l

a

p

e

r

t

u

r

a

d

a

p

r

a

t

i

c

a

r

e

n

e

l

s

o

f

f

i

t

t

o

3

8

4

9

5

0

I

n

g

o

m

b

r

o

p

a

n

n

e

l

l

o

1

0

5

3

5

1

1

0

0

0

o

p

i

u

̀

1

5

o

p

i

u

̀

8

0

1

7

2

1

1

2

4

0

8

P

a

r

t

e

v

e

r

t

i

c

a

l

e

8

5

0

o

m

e

n

o

P

a

r

t

e

v

e

r

t

i

c

a

l

e

6

6

1

o

m

e

n

o

1

5

o

p

i

u

̀