Basamento combinate con bollitore IBRIDE

TOWER GREEN HE HYBRID

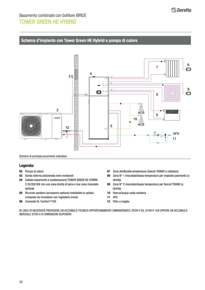
Schema d’impianto con Tower Green HE Hybrid e pompa di calore

3

2

12

Schema di principio puramente indicativo

Legenda:

4

7

8

6

   

6

   

AFS

11

02 Pompa di calore

07

03 Sonda esterna posizionata nord-nordovest

08

04 Caldaia basamento a condensazione TOWER GREEN HE HYBRID

S 35/200 BSI con una zona diretta di serie e due zone miscelate

09

optional

05 Ricircolo sanitario (accessorio optional installabile in caldaia

10

composto da circolatore con regolatore orario)

11

06 Comando Hi, Comfort T100

12

Zona diretta/alta temperatura (fancoil TIVANO o radiatore)

Zona N° 1 miscelata/bassa temperatura per impianto pavimento (o

diretta)

Zona N° 2 miscelata/bassa temperatura per fancoil TIVANO (o

diretta)

Utenza/acqua calda sanitaria

AFS

Filtro a maglia











5

IN CASO DI NECESSITÀ PREVEDERE UN ACCUMULO TECNICO OPPORTUNAMENTE DIMENSIONATO: STOR H 50, STOR H 100 OPPURE UN ACCUMULO

INERZIALE STOR H DI DIMENSIONI SUPERIORI

82

ACS

9

10

ACS