Basamento combinate con bollitore IBRIDE

TOWER GREEN HE HYBRID S

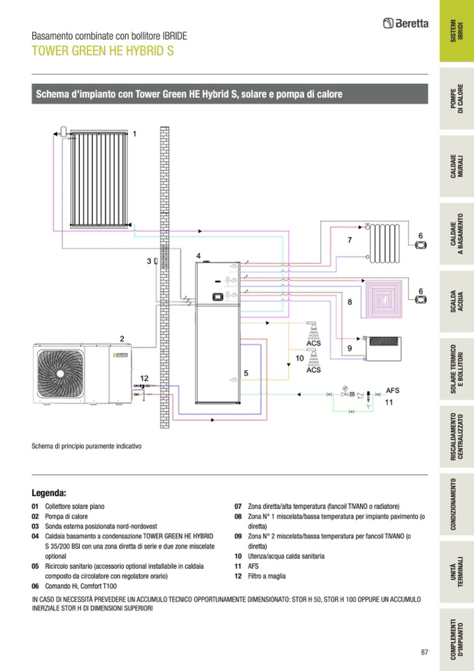
Schema d’impianto con Tower Green HE Hybrid S, solare e pompa di calore

1

T

S

I

R

B

I

S

3

2

12

Schema di principio puramente indicativo





4









5

7

8

9

6

   

6

   

E

E

R

P

M

O

L

A

O

P

C

I

D

E

I

A

I

L

A

D

L

A

R

U

C

M

O

T

E

I

A

N

E

M

D

L

A

A

S

C

A

B

A

A

D

L

A

U

Q

A

C

S

C

A

O

C

I

M

I

R

O

R

E

T

T

I

L

E

R

A

O

B

L

O

S

E

O

T

N

O

T

A

E

M

Z

I

A

D

L

L

A

R

A

C

S

T

N

E

I

R

C

O

T

N

E

M

A

N

O

I

Z

I

D

N

O

C

I

L

A

A

̀

T

I

N

N

I

M

U

R

E

T

I

T

N

E

O

T

N

M

E

L

A

I

P

P

M

O

M

I

'

D

C

Legenda:

01 Collettore solare piano

07

02 Pompa di calore

08

03 Sonda esterna posizionata nord-nordovest

04 Caldaia basamento a condensazione TOWER GREEN HE HYBRID

09

S 35/200 BSI con una zona diretta di serie e due zone miscelate

optional

10

05 Ricircolo sanitario (accessorio optional installabile in caldaia

11

composto da circolatore con regolatore orario)

12

06 Comando Hi, Comfort T100

Zona diretta/alta temperatura (fancoil TIVANO o radiatore)

Zona N° 1 miscelata/bassa temperatura per impianto pavimento (o

diretta)

Zona N° 2 miscelata/bassa temperatura per fancoil TIVANO (o

diretta)

Utenza/acqua calda sanitaria

AFS

Filtro a maglia

IN CASO DI NECESSITÀ PREVEDERE UN ACCUMULO TECNICO OPPORTUNAMENTE DIMENSIONATO: STOR H 50, STOR H 100 OPPURE UN ACCUMULO

INERZIALE STOR H DI DIMENSIONI SUPERIORI

ACS

10

ACS

AFS

11

87

I

M

E

I

D

I