Modulo idronico - Estía Standard e Alta Potenza

5

.

9

1

2

5

3

5

1

e

l

a

n

i

d

u

t

i

g

n

o

l

o

r

o

f

0

2

9

0

6

9

e

o

i

g

a

r

o

c

n

a

i

d

e

n

o

l

u

b

0

4

4

5

0

2

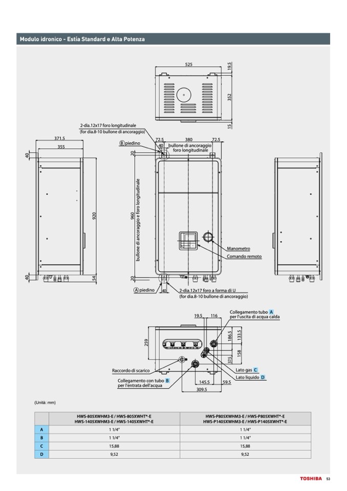
(Unità: mm)

A

B

C

D

HWS-P805XWHM3-E / HWS-P805XWHT*-E

HWS-P1405XWHM3-E / HWS-P1405XWHT*-E

1 1/4’’

1 1/4’’

15,88

9,52

2-dia.12x17 foro longitudinale

(for dia.8-10 bullone di ancoraggio)

371.5

72.5

380

72.5

B piedino

355

40

bullone di ancoraggio

foro longitudinale

0

4

0

2

Raccordo di scarico

Collegamento con tubo B

per l'entrata dell'acqua

HWS-805XWHM3-E / HWS-805XWHT*-E

HWS-1405XWHM3-E / HWS-1405XWHT*-E

1 1/4’’

1 1/4’’

15,88

9,52

145.5

309.5

59.5

8

5

1

5

.

7

3

Lato gas C

Lato liquido D

A piedino

40

2-dia.12x17 foro a forma di U

(for dia.8-10 bullone di ancoraggio)

525

19.5

116

Collegamento tubo A

per l'uscita di acqua calda

5

.

6

5

.

3

9

5

8

1

1

2

Manometro

Comando remoto

53