10

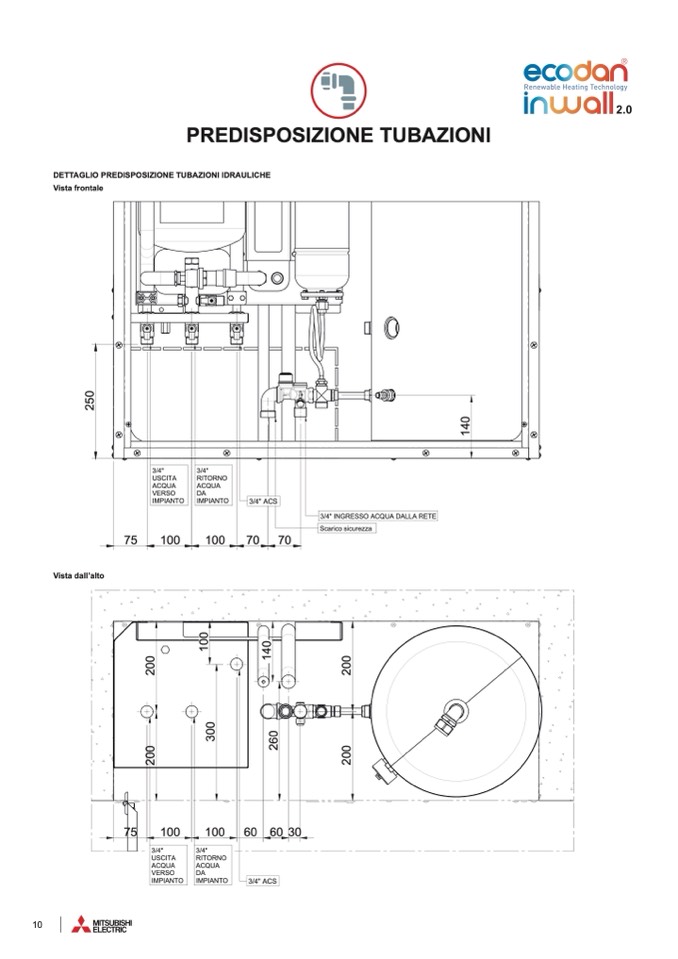
PREDISPOSIZIONE TUBAZIONI

DETTAGLIO PREDISPOSIZIONE TUBAZIONI IDRAULICHE

Vista frontale

Vista dall’alto

3/4"

3/4"

3/4"

3/4"

USCITA

RITORNO

USCITA

RITORNO

ACQUA

ACQUA

ACQUA

ACQUA

VERSO

DA

VERSO

DA

IMPIANTO

IMPIANTO

3/4" ACS

3/4" ACS

75

100

100

70 70

75

100

100

70 70

IMPIANTO

IMPIANTO

75

100

100 60 6030

75

100

100 60 6030

3/4"

3/4"

3/4"

3/4"

USCITA

RITORNO

USCITA

RITORNO

ACQUA

ACQUA

ACQUA

ACQUA

VERSO

DA

VERSO

DA

IMPIANTO

IMPIANTO

3/4" ACS

IMPIANTO

IMPIANTO

3/4" ACS

3/4" INGRESSO ACQUA DALLA RETE

3/4" INGRESSO ACQUA DALLA RETE

Scarico sicurezza

Scarico sicurezza

2

2

0

0

0

2

2

0

0

0

1

1

0

0

0

1

1

4

4

0

0

3

3

0

0

0

2

2

6

6

0

0

2

2

0

0

0

2

2

0

0

0

1

1

4

4

0

0

2

2

5

5

0

0