G

R

E

E

N

E

SCHEMA TECNICO E CALCOLO DELLE ALTEZZE

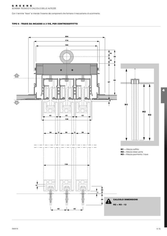
Con il termine “trave” si intende l’insieme dei componenti che formano il meccanismo di scorrimento.

TIPO 9 - TRAVE DA INCASSO A 3 VIE, PER CONTROSOFFITTO

204

174

7

4

18

36

18

84

97

5

H1

43

43

43

134

H2

H3

38

5

164

38

5

38

124

H1 = Altezza soffitto

H2 = Altezza telaio porta

H3 = Altezza pavimento / trave

5

20

7

30

CALCOLO DIMENSIONI

H2 = H3 - 12

43

43

09/2016

4.15

4