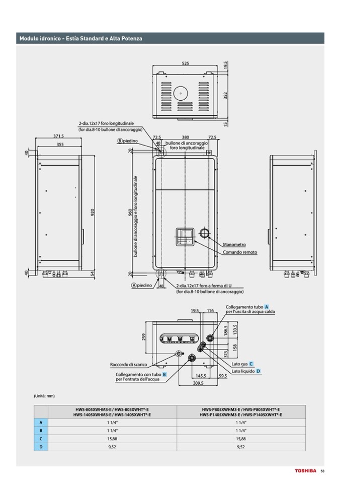
Modulo idronico - Estía Standard e Alta Potenza

(Unità: mm)

A

B

C

D

Collegamento con tubo B

per l'entrata dell'acqua

HWS-805XWHM3-E / HWS-805XWHT*-E

HWS-1405XWHM3-E / HWS-1405XWHT*-E

1 1/4’’

1 1/4’’

15,88

9,52

HWS-P805XWHM3-E / HWS-P805XWHT*-E

HWS-P1405XWHM3-E / HWS-P1405XWHT*-E

1 1/4’’

1 1/4’’

15,88

9,52

371.5

355

2-dia.12x17 foro longitudinale

(for dia.8-10 bullone di ancoraggio)

B piedino

72.5

40

525

380

72.5

bullone di ancoraggio

foro longitudinale

Raccordo di scarico

116

59.5

Lato gas C

Lato liquido D

A piedino

40

2-dia.12x17 foro a forma di U

(for dia.8-10 bullone di ancoraggio)

19.5

145.5

309.5

Collegamento tubo A

per l'uscita di acqua calda

Manometro

Comando remoto

3

7

.

5

1

8

6

.

5

1

5

8

1

3

3

.

5

1

5

3

5

2

1

9

.

5

2

5

9

4

0

4

0

5

4

9

2

0

2

0

9

6

0

b

u

l

l

o

n

e

d

i

a

n

c

o

r

a

g

g

i

o

e

f

o

r

o

l

o

n

g

i

t

u

d

i

n

a

l

e

2

0

53