INDICE DIMENSIONALI

DIMENSIONALI: SISTEMI VRF

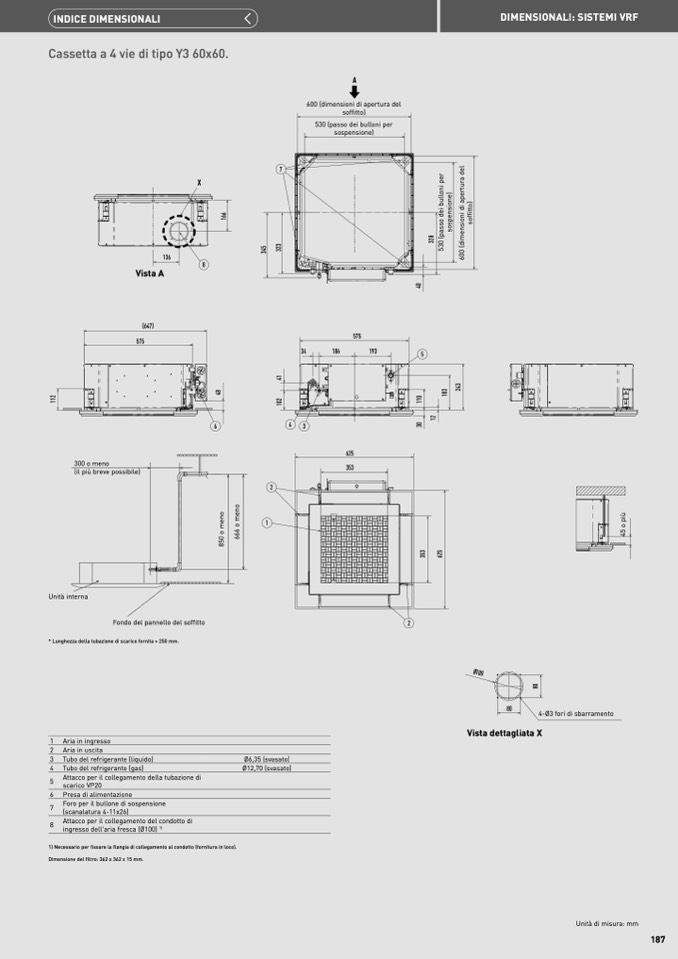
Cassetta a 4 vie di tipo Y3 60x60.

X

8

A

Unità interna

136

Vista A

(647)

575

300 o meno

(il più breve possibile)

34

186

575

625

193

5

Fondo del pannello del soffitto

2

* Lunghezza della tubazione di scarico fornita = 250 mm.

1 Aria in ingresso

2 Aria in uscita

3 Tubo del refrigerante (liquido)

4 Tubo del refrigerante (gas)

5

Attacco per il collegamento della tubazione di

scarico VP20

6 Presa di alimentazione

7

Foro per il bullone di sospensione

(scanalatura 4-11x26)

8

Attacco per il collegamento del condotto di

ingresso dell'aria fresca (Ø100)

1)

1) Necessario per fissare la flangia di collegamento al condotto (fornitura in loco).

Dimensione del filtro: 362 x 362 x 15 mm.

4-Ø3 fori di sbarramento

6

4

3

2

1

Ø6,35 (svasato)

Ø12,70 (svasato)

7

600 (dimensioni di apertura del

soffitto)

Vista dettagliata X

Unità di misura: mm

187

530 (passo dei bulloni per

sospensione)

5

3

0

(

p

a

s

s

o

d

e

i

b

u

l

l

o

n

i

p

e

r

s

o

s

p

e

n

s

i

o

n

e

)

6

0

0

(

d

i

m

e

n

s

i

o

n

i

d

i

a

p

e

r

t

u

r

a

d

e

l

s

o

f

f

i

t

t

o

)

3

2

3

3

2

8

1

1

0

1

8

3

353

6

6

6

o

m

e

n

o

3

5

3

80

Ø100

8

0

6

2

5

1

2

8

5

0

o

m

e

n

o

4

8

1

0

2

4

1

1

6

6

4

5

o

p

i

u

̀

3

0

4

0

1

1

2

2

4

3

3

4

5