CASSETTA A 4 VIE COMPATTA

Dimensionali

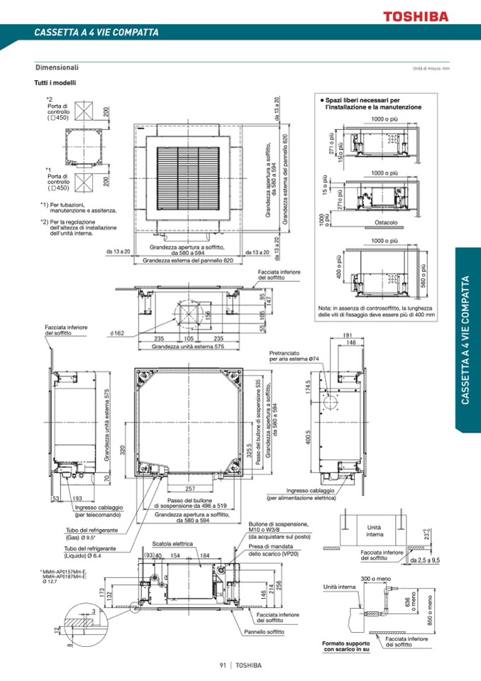
Tutti i modelli

Porta di

controllo

Porta di

controllo

Per tubazioni,

manutenzione e assitenza.

Per la regolazione

dell'altezza di installazione

dell'unità interna.

Unità di misura: mm

Spazi liberi necessari per

l’installazione e la manutenzione

1000 o più

0

2

u

̀

i

p

,

o

t

6

o

l

o

1

u

̀

i

t

f

i

f

l

e

n

7

2

p

o

o

s

n

a

5

1

a

4

9

p

l

r

5

e

u

t

a

d

1000 o più

r

e

0

a

n

u

̀

i

p

p

a

8

5

r

e

t

o

a

z

a

d

s

e

5

1

u

̀

i

p

e

d

a

z

o

1

n

a

r

e

d

7

2

G

n

a

r

0

u

̀

i

p

G

1

o

Ostacolo

0

2

a

1000 o più

Grandezza apertura a soffitto,

da 580 a 594

da13a20

3

1

Grandezza esterna del pannello 620

a

d

u

̀

i

p

o

0

u

̀

i

p

Facciata inferiore

del soffitto

0

4

o

0

A

6

5

T

A

P

M

Nota: in assenza di controsoffitto, la lunghezza

delle viti di fissaggio deve essere più di 400 mm

O

C

E

I

V

Facciata inferiore

del soffitto

Ingresso cablaggio

(per telecomando)

Tubo del refrigerante

(Gas) Ø 19.25.*7

Tubo del refrigerante

(Liquido) Ø 6.4

* MMH-AP0157MH-E,

MMH-AP0187MH-E:

Ø 12.7

Passo del bullone

di sospensione da 496 a 519

Grandezza apertura a soffitto,

da 580 a 594

Scatola elettrica

Unità

interna

Facciata inferiore

del soffitto

300 o meno

Unità interna

6

o

n

e

o

n

3

6

m

o

e

m

o

0

5

8

Facciata inferiore

del soffitto

da13a20

0

2

a

3

1

a

d

Grandezza unità esterna 575

Pretranciato

per aria esterna ø74

4

A

T

E

S

5

o

t

5

3

,

5

e

t

S

7

5

n

o

i

f

i

f

o

A

a

n

s

n

e

s

a

4

C

r

e

t

p

s

a

r

9

5

s

e

o

s

i

u

t

r

a

a

̀

t

i

d

e

e

p

0

8

5

n

u

n

o

l

a

a

a

z

l

u

b

z

e

d

z

e

d

l

e

d

d

n

n

a

r

o

s

a

r

G

G

s

a

P

Ingresso cablaggio

(per alimentazione elettrica)

Bullone di sospensione,

M10 o W3/8

(da acquistare sul posto)

Presa di mandata

dello scarico (VP20)

Facciata inferiore

del soffitto

Pannello soffitto

91

TOSHIBA

Formato supporto

con scarico in su

da 2,5 a 9,5