Caldaie

Dima e attacchi caldaie ≤ 35 kW

C

A

L

D

A

I

E

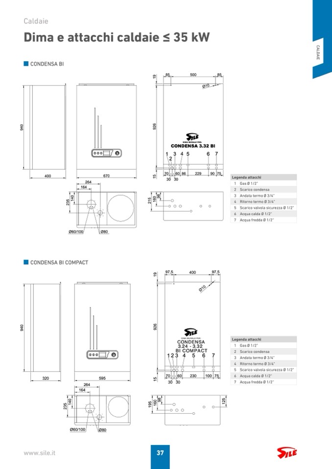
CONDENSA BI

Ø10

400

670

Ø80

70 - - 60 86

30 30

229

90 75

Legenda attacchi

1 Gas Ø 1/2”

2 Scarico condensa

3 Andata termo Ø 3/4”

4 Ritorno termo Ø 3/4”

5 Scarico valvola sicurezza Ø 1/2”

6 Acqua calda Ø 1/2”

7 Acqua fredda Ø 1/2”

CONDENSA BI COMPACT

www.sile.it

37

320

595

70--60

230

30 30

100 75

264

164

Ø60/100

Ø60/100

Ø80

264

164

85

500

85

DIMA MURALE PER:

CONDENSA 3.32 BI

1

2

345

67

97,5

400

97,5

Ø10

DIMA MURALE PER:

Legenda attacchi

1 Gas Ø 1/2”

2 Scarico condensa

3 Andata termo Ø 3/4”

4 Ritorno termo Ø 3/4”

5 Scarico valvola sicurezza Ø 1/2”

6 Acqua calda Ø 1/2”

7 Acqua fredda Ø 1/2”

CONDENSA

3.24 - 3.32

BI COMPACT

123

4

5

6

7

2

3

5

1

4

0

2

3

5

1

4

0

1

9

5

1

6

0

1

5

9

2

6

1

9

2

1

5

1

6

0

1

5

9

2

6

1

9

9

8

9

8

1

2

5

9

4

0

9

4

0