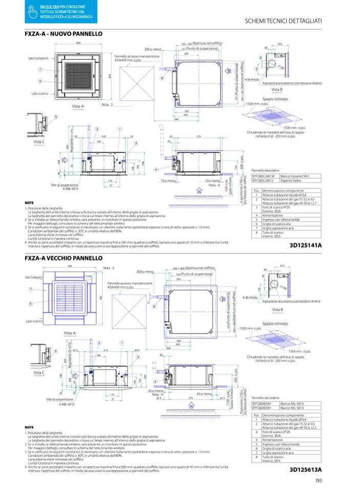
FXZA-A - NUOVO PANNELLO

Lato tubazioni

Lato scarico

Vista C

Vista ·A·

Pannello accesso manutenzione

450x450 mm o pi

Nota · 2·

4-M 4Hole

Aspirazione aria esterna (connessione diretta)

Vista B

Spazio richiesto

·1500 mm· o più

·1500 mm· o più

Chiudendo la mandata dell'aria, lo spazio

richiesto è di · 200 mm o pi

ù.

NOTE

Vite di sospensione

4-M8~M10

Pos. Denominazione componente

1 Attacco tubazione liquido Ø 6,4

2 Attacco tubazione del gas·15-32 ø 9,5·

Attacco tubazione del gas 40-50 ø 12,7·

3 Foro di scarico VP20

Esterno: ·Ø26·

4 Alimentazione

5 Ingresso cavi telecomando

6 Griglia di scarico aria

7 Griglia aspirazione aria

8 Tubo di scarico

Interno: ·Ø25·

3D125141A

4-M 4Hole

Aspirazione ariae

esterna (connessione diretta)

Vista B

Spazio richie

sp

to

·1500 mm· o più

·1500 mm· o più

Chiudendo la mandata dell'aria, lo spazio

richiesto è di · 200 mm o pi

ù.

1. Posizione della targhetta

La targhetta dell’unit

à interna si trova sulla bocca svasata all'interno della griglia di aspirazione.

La targhetta del pannello decorativo si trova sul telaio interno, all'interno della griglia di aspirazione.

2. Se si installa un telecomando wireless, sarà presente un ricevitore in questa posizione.

Per maggiori dettagli, consultare lo schema del telecomando wireless.

3. Se si verificano le seguenti condizioni,

è necessario un ulteriore isolamento (polietilene espanso o lana di vetro, spessore ≥· 10 mm):

Condizioni ambientali del soffitto ≥ 30°C e umidit

à relativa dell’80%.

L'aria esterna viene immessa nel soffitto.

L’unit

à funziona in maniera continua.

4. Anche se sono accettabili impianti con un'apertura massima fino a 595 mm quadrati a soffitto, lasciare uno spazio di 10 mm o inferiore tra l'unit

interna e l'apertura del so

ffitto, in modo da assicurare la sovrapposizione ai pannelli del so

ffitto.

FXZA-A VECCHIO PANNELLO

Lato tubazioni

Lato scarico

Vista C

Nota · 2·

(Apertura nel soffitto)

300·o meno

Vite di sospensione

4-M8~M10

Pannello decorativo

BYFQ60B2W1

BYFQ60B3W1

Bianco RAL 9010

Bianco RAL 9010

Vista ·A·

Pannello accesso manutenzione

450x450 mm o pi

2. Se si installa un telecomando wireless, sarà presente un ricevitore in questa posizione.

0

a

Per maggiori dettagli, consultare lo schema del telecomando wireless.

3. Se si verificano le seguenti condizioni,

è necessario un ulteriore isolamento (polietilene espanso o lana di vetro, spessore ≥· 10 mm):

Condizioni ambientali del soffitto ≥ 30°C e umidit

à relativa dell’80%.

L'aria esterna viene immessa nel soffitto.

L’unit

à funziona in maniera continua.

5

n

6

Ingresso cavi telecomando

4. Anche se sono accettabili impianti con un'apertura massima fino a 660 mm quadrati a soffitto, lasciare uno spazio di 45 mm o inferiore tra l'unit

interna e l'apertura del so

ffitto, in modo da assicurare la sovrapposizione ai pannelli del so

ffitto.

3D125613A

300·o meno

45·o meno

Nota · 4·

45·o meno

10·o meno

10·o meno

Nota · 4·

Pannello decorativo

BYFQ60C4W1W

BYFQ60C4W1S

Bianco frizzante N9.5

Argento Daikin

(Apertura nel so

ffitto)

Pos. Denominazione componente

c

1 Attacco tubazione liquido Ø 6,4

NOTE

a

2 Attacco tubazione del gas·15-32 ø 9,5·

Attacco tubazione del gas 40-50 ø 12,7·

3 Foro di scarico VP20

Esterno: ·Ø26·

4 Alimentazione

1. Posizione della targhetta

e

e

La targhetta dell’unit

à interna si trova sulla bocca svasata all'interno della griglia di aspirazione.

La targhetta del pannello decorativo si trova sul telaio interno, all'interno della griglia di aspirazione.

SCHEMI TECNICI DETTAGLIATI

Griglia di scarico aria

7 Griglia aspirazione aria

8 Tubo di scarico

Interno: ·Ø25·

193

(

5



5



5



5

(

3

3

5

(Punto di sospensione)

0

2

3

(

P

u

n

t

o

d

i

s

o

s

p

e

n

s

i

o

n

e

)

(

A

p

e

r

t

u

r

a

n

e

l

s

o

ff

i

t

t

o

)

5

3

3

(

)

B

5

7

5

8

5

0

R

e

g

o

l

a

b

i

l

e

2

2

(

5

7

5

6

9

1

4

6

2

6

C

0

1

1

5

9

6

4

2

0

O

O

0

2

3

(

3

3

5

0

6

6



5

8

5

(Punto di sospensione)

(

P

u

n

t

o

d

i

s

o

s

p

e

n

s

i

o

n

e

)

(

B

o

·

2

9

5

·

o

p

i

u

̀

5



2

6

(

8

5

0

e

g

o

l

a

b

i

l

e

(

2

6

0

R

5

7

5

6

9

1

1

1

4

8

5

3

5

2

2

0

5

C

·

1

5

0

0

·

o

p

i

u

̀

S

p

a

z

i

o

r

i

c

h

i

e

s

t

A

p

a

v

i

m

e

n

t

o

2

7

0

0

o

·

p

i

u

̀

A

l

t

e

z

z

a

d

e

l

s

o

ff

i

t

t

o

(

A

p

e

r

t

u

r

a

n

e

l

s

o

ff

i

t

t

o

)

·

1

5

0

0

·

o

p

i

u

̀

S

p

a

z

i

o

r

i

c

h

i

e

s

t

o

A

p

a

v

i

m

e

n

t

o

2

7

0

0

o

·

3

0

8

·

o

p

i

u

̀

p

i

u

̀

A

l

t

e

z

z

a

d

e

l

s

o

ff

i

t

t

o

0

~

6

7

5

)

0

0

0

1

0

1

2

8

9

9

8

0

0

0

1

)

8

3

2

2

9

8

9

1

1

5

8

5

~

5

9

5

(

1

9

0

5

8

5

~

5

3

6

3

6

0

(

5



2

6

5

7

5

5



2

6

3

6

1

2

2

7

1

1

3

7

0

0

4

8

3

7

6

5

2

A

A

5



3

0

2

3

5

3

0

2

3

0

9

5

0

9

5

3

6

4

3

5

0

5

0

~

4

8

2

2

2

2

8

0

~

6

7

3

1

5

7

2

8

5

5

7

2

9

8

2

5



2

6

5

2

1

2

2

7

1

1

3

5

6

2

0

0

2

6

)

0

0

7

8

5

6

6

1

W

4

C

0

6

Q

F

Y

B

W

1

W

4

C

0

6

Q

F

Y

B

6

FAI CLIC QUI PER CONSULTARE

TUTTI GLI SCHEMI TECNICI DEL

MODELLO FXZA-A SU MY.DAIKIN.EU