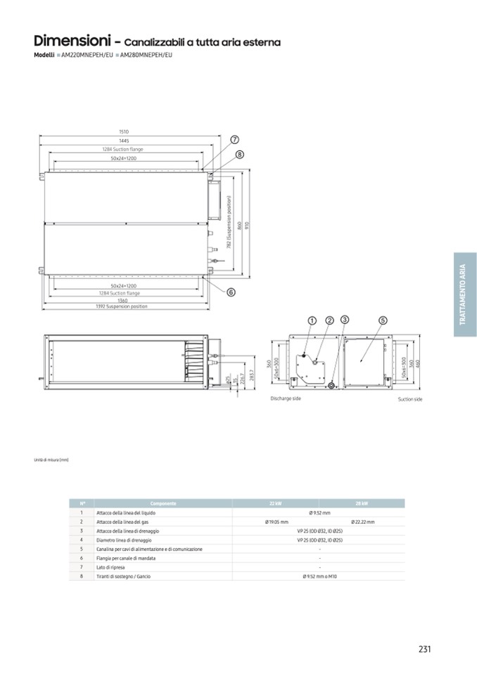
Dimensioni -

Canalizzabili a tutta aria esterna

Modelli AM220MNEPEH/EU AM280MNEPEH/EU

Unità di misura [mm]

1510

1445

50x24=1200

50x24=1200

A

I

R

A

O

T

N

E

M

A

T

A

R

T

1360

1392 Suspension position

Componente

1

Attacco della linea del liquido

2

Attacco della linea del gas

3

Attacco della linea di drenaggio

4

Diametro linea di drenaggio

5

Canalina per cavi di alimentazione e di comunicazione

6

Flangia per canale di mandata

7

Lato di ripresa

8

Tiranti di sostegno / Gancio

Ø 9.52 mm

VP 25 (OD Ø32, ID Ø25)

VP 25 (OD Ø32, ID Ø25)

-

-

-

Ø 9.52 mm o M10

28 kW

Ø 22.22 mm

)

n

o

i

t

i

s

o

p

n

o

i

s

n

e

0

6

8

0

1

9

p

s

u

S

(

2

8

7

0

6

0

3

0

3

0

6

0

6

7

.

3

=

6

x

=

6

x

3

4

5

2

5

7

.

6

2

3

8

2

0

5

0

5

ø

3

2

Discharge side

22 kW

Ø 19.05 mm

Suction side

231