G

R

E

E

N

E

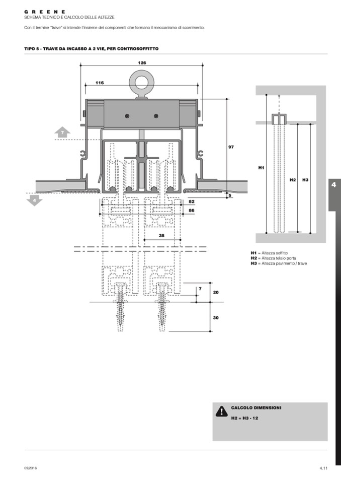
SCHEMA TECNICO E CALCOLO DELLE ALTEZZE

Con il termine “trave” si intende l’insieme dei componenti che formano il meccanismo di scorrimento.

TIPO 5 - TRAVE DA INCASSO A 2 VIE, PER CONTROSOFFITTO

126

116

H2

H3

7

97

5

H1

4

82

86

38

H1 = Altezza soffitto

H2 = Altezza telaio porta

H3 = Altezza pavimento / trave

7

20

30

CALCOLO DIMENSIONI

H2 = H3 - 12

09/2016

4.11

4