40

97

Ø6

H2

H3

38

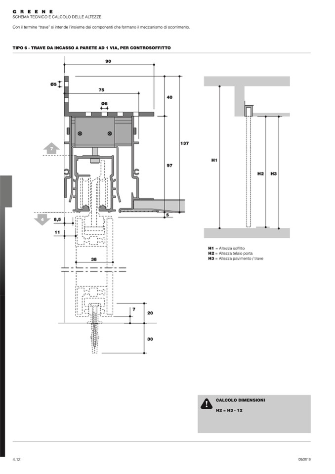
CALCOLO DIMENSIONI

H2 = H3 - 12

G

R

E

E

N

E

SCHEMA TECNICO E CALCOLO DELLE ALTEZZE

Con il termine “trave” si intende l’insieme dei componenti che formano il meccanismo di scorrimento.

TIPO 6 - TRAVE DA INCASSO A PARETE AD 1 VIA, PER CONTROSOFFITTO

Ø5

7

90

75

137

5

H1

4

8,5

11

H1 = Altezza soffitto

H2 = Altezza telaio porta

H3 = Altezza pavimento / trave

7

20

30

4.12

09/2016