PRODOTTI CHIMICI

NORMATIVE UTILI

COME

È REGOLAMENTATO OGGI L’ESERCIZIO, LA CONDUZIONE, IL CONTROLLO,

LA MANUTENZIONE E L'ISPEZIONE DEGLI IMPIANTI TERMICI?

Il DPR del 16 Aprile 2013 n°74 regolamenta quanto indicato dal DPR 59/2009 e dalle norme UNI CTI 8065 chiarendo

definitivamente anche in Italia il ruolo centrale del trattamento acque nell’impiantistica.

Il DPR 74/2013 de

finisce il nuovo “libretto di impianto per la climatizzazione” che si applica a tutti gli impianti

per la climatizzazione, anche estiva, e per la produzione di acqua calda sanitaria studiato per ottimizzare e mantenere

ef

ficienza e sicurezza dell’impianto minimizzando i consumi nel tempo.

Il libretto di impianto è obbligatorio per tutti gli impianti indipendentemente dalla loro potenza termica, sia esistenti

che di nuova installazione. Restano esclusi i boiler per la produzione dell’acqua calda sanitaria.

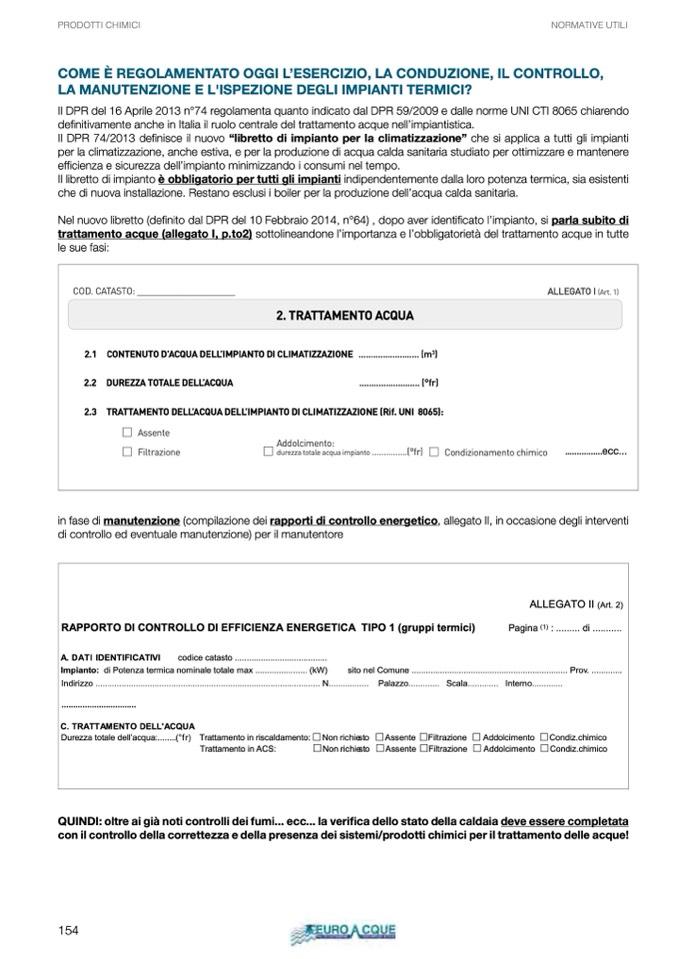
Nel nuovo libretto (de

finito dal DPR del 10 Febbraio 2014, n°64) , dopo aver identificato l’impianto, si parla subito di

trattamento acque (allegato I, p.to2) sottolineandone l’importanza e l’obbligatorietà del trattamento acque in tutte

le sue fasi:

COD. CATASTO: ____________________

ALLEGATO I (Art. 1)

2.1 CONTENUTO D’ACQUA DELL’IMPIANTO DI CLIMATIZZAZIONE ......................... (m

3

)

2.2 DUREZZA TOTALE DELL’ACQUA

......................... (°fr)

2.3 TRATTAMENTO DELL’ACQUA DELL’IMPIANTO DI CLIMATIZZAZIONE (Rif. UNI 8065):

2. TRATTAMENTO ACQUA

Assente

Filtrazione

durezza totale acqua impianto ...............(°fr)

Protezione del gelo:

Assente

Addolcimento:

Condizionamento chimico

................ecc...

Glicole etilenico

concentrazioneglicolenelfluidotermovettore

.........A...L...L.E(%G)A...T...O.....I.I...(.A(rpt.H2))

A. DATI IDENTIFICATIVI

codice catasto .......................................

2.4 TRATTAMENTO DELL’ACQUA CALDA SANITARIA (Rif. UNI 8065):

Glicole propilenico

in fase di manutenzione (compilazione dei rapporti di controllo energetico, allegato II, in occasio

(1

n

)

e degli interventi

RAPPORTO DI CONTROLLO DI EFFICIENZA ENERGETICA TIPO 1 (gruppi termici)

Pagina : ......... di ...........

concentrazione glicole nel fluido termovettore

................ (%) ................ (pH)

di controllo ed eventuale manutenzione) per il manutentore

Impianto: di Potenza termica nominale totale max ...................... (kW)

sito nel Comune .................................................................. Prov. .............

Indirizzo ...................A..s..s..e..n..t.e................................................................. N................. Palazzo............. Scala............. Interno.............

(2)

Addolcimento:

Responsabile dell’impianto :Cognome.......................................................... Nome............................................. C.F. ................................................

................................

Filtrazione

durezza totale uscita addolcitore ............(°fr)

Condizionamento chimico

Ragione Sociale........................................................................................................................................................... P.IVA ..............................................

(3)

Indirizzo ............................................................................................... N................. Comune .................................................................. Prov. .............

RAPPORTO DI CONTROLLO DI EFFICIENZA ENERGETICA TIPO 1 (gruppi termici)

Pagina

(1)

: ......... di ...........

2.5 TRATTAMENTO DELL’ACQUA DI RAFFREDDAMENTO DELL’IMPIANTO DI CLIMATIZZAZIONE ESTIVA:

Titolo di responsabilit

à:

Proprietario

Occupante

Amministratore Condominio

Terzo Responsabile

Impresa manutentrice(4): Ragione Sociale ..............................

.........

....................................................

...... P.IVA ..........................................

Assente

A. DATI IDENTIFICATIVI

codice catasto .......................................

Indirizzo ............................................................................................... N................. Comune .................................................................. Prov. .............

Impianto: di Potenza termica nominale totale max ...................... (kW)

sito nel Comune .................................................................. Prov. .............

Tipologia circuito di raffreddamento:

BIn.dDiriOzzCoU.M....E..N...T..A...Z..I.O...N..E....T...E..C...N..I.C...A....A....C..O...R...R...E..D...O.............................. N................. Palazzo............. Scala............. Interno.............

S

ì No

S

ì No

Libretti uso/manutenzione generatore presenti

Libretto impianto presente

Libretto compilato in tutte le sue parti

Dichiarazione di Conformit

à pr(e2s)ente

Responsabile dell’ismepnizaantroecu:pCeorgontoemrme.i.c..o......................a...r.e..c..u..p..e..r..o...t.e..r..m...i.c..o..pNaormziea.l.e.........................a...r..e..c..u..p..e..r.o.. tCe.rFm. .i.c..o...t.o..t.a..l.e..................................

Ragione Sociale........................................................................................................................................................... P.IVA ..............................................

(3)

Origine acqua di alimento:

CIn.dTirRizAzoTT...A..M...E...N..T..O....D...E..L...L..'.A..C...Q...U..A....................................................... N................. Comune .................................................................. Prov. .............

Durezza totale dell’acaqcuqau:e..d..o..t..t(o°f r) Trattamento in riscaldpaomzeznoto: Non richiesto

Assente Filtraazcioqnuea supAedrd

fioclicailmeento Condiz.chimico

Titolo di responsabilit

à:

Proprietario

Occupante

Amministratore Condominio

Terzo Responsabile

Trattamento in ACS:

Non richiesto

Assente Filtrazione

Addolcimento

Condiz.chimico

Impresa manutentrice(4): Ragione Sociale ..............................

.........

....................................................

...... P.IVA ..........................................

Trattamenti acqua esistenti :

DIn.dCiriOzzNoT.R..O...L..L...O....D...E..L...L..'.I.M...P..I..A..N...T..O..................................S...

ì....N..o....N...c.... N................. Comune .................................................................. ProSvì. ..N...o....N..c..

S

ì No

Filtrazione

filtrazione di sicurezza

Per installazione interna: in locale idoneo

Canale da fumo o condotti di scarico idonei (esame visivo)

B. DOCUMENTAZIONE TECNICA A CORREDO

ALLEGATO II (Art. 2)

Per installazione esterna: generatori idonei

S

ì No

filtraziSoinseteamma daisrsegolazione temperatura ambiente funzionante

Libretti uso/manutenzione generatore presenti

Dichiarazione di Conformit

à presente

Aperture ventilazione/aerazione libere da ostruzioni

Libretto impianto presente

Assenza di perdite di combustibile liquido (5)

altro ..................................................................

Adeguate dimensioni aperture di ventilazione/aerazione

Idonea tenuta dell’impianto interno e raccordi con il generatore (6)

QUINDI: oltre ai gi

à noti controlli dei fumi... ecc... la verifica dello stato della caldaia deve essere completata

C. TRATTAMENTO DELL'ACQUA

nessun trattamento

Libretto compilato in tutte le sue parti

con il controllo della correttezza e della presenza dei sistemi/prodotti chimici per il trattamento delle acque!

E. CONTROLLO E VERIFICA ENERGETICA DEL GRUPPO TERMICO GT............. Data installazione ........................

Durezza totale dell’acqua:........(°fr) Trattamento in riscaldamento: Non richiesto

Assente Filtrazione

Assente Filtrazione

Addolcimento

Addolcimento

Condiz.chimico

Condiz.chimico

Trattamento acqua

addolcimento

Fabbricante .........................................T..r.a..t.t.a..m...e..nto in ACS:

Non richiesto

Gruppo termico singolo

Gruppo termico modulare

Modello ..............................................................

osmosi inversa

Generatore d’aria calda

Perinstallazioneinterna:inlocaleidoneo

Pot.term.nominaleCmaanxalaeldfoacofulamreo.o...c.o..n(dkoWtt)idiPsocat.rteicromi.dnoonmeiin(easleamuteilevi.s..i.v.o..)(kW)

D. CONTROLLO DELL'IMPIANTO

S

ì No Nc

Sì No Nc

Sì No Nc

Matricola ............................................................

demineralizzazione

Per installazione esterna: generatori idonei

altro ..

................................................................

Climatizzazione invernale

Produzione ACS (7)

Aperture ventilazione/aerazione libere da ostruzioni

Dispositivi di comando e regolazione funzionanti correttamente

Combustibile:

GPL

Gas naturale

Dispositivi di sicurezza non manomessi e/o cortocircuitati

Adeguate dimensioni aperture di ventilazione/aerazione

Idonea tenuta dell’impianto interno e raccordi con il generatore (6)

Valvola di sicurezza alla sovrapressione a scarico libero

Tubo / nastro radiante

Sistema di regolazione temperatura ambiente funzionante

Assenza di perdite di combustibile liquido (5)

nessun trattamento

154

Gasolio

Altro .........................

E. CONTROLLO E VERIFICA ENERGETICA DEL GRUPPO TERMCIoCnOtroGllTa.t.o..e...p..u..l.i.to loDsactaminbsitatlolarzeiolanteo .f.u..m...i.................

Condizionamento chimico

a prevalente azione antincrostante

M

o

d

a

l

i

t

a

̀

d

i

e

v

a

c

u

a

z

i

o

n

e

f

u

m

i

:

N

a

t

u

r

a

l

e

F

o

r

z

a

t

a

P

r

e

s

e

n

z

a

r

i

f

l

u

s

s

o

d

e

i

p

r

o

d

o

t

t

i

d

e

l

l

a

c

o

m

b

u

s

t

i

o

n

e

F

a

b

b

r

i

c

a

n

t

e

.

.

.

.

.

.

.

.

.

.

.

.

.

.

.

.

.

.

.

.

.

.

.

.

.

.

.

.

.

.

.

.

.

.

.

.

.

.

.

.

.

.

.

.

.

.

.

.

.

.

.

.

.

.

.

G

r

u

p

p

o

t

e

r

m

i

c

o

s

i

n

g

o

l

o

G

r

u

p

p

o

t

e

r

m

i

c

o

m

o

d

u

l

a

r

e

a

p

r

e

v

a

l

e

n

t

e

a

z

i

o

n

e

a

n

t

i

c

o

r

r

o

s

i

v

a